售前:17276494626
售后:400-806-5128
吸附罐應符合以下要求:
1.采用顆粒狀活性炭,并且有吸附性能好、機械強度高、化學穩(wěn)定性好、再生能力強等特性;
2.活性炭粒徑0.9~1.6mm范圍,比表面積=900 rm2/g;
3.吸附層的有效厚度不小于臭氧吸附罐的濾速范圍應再30~35m/h;
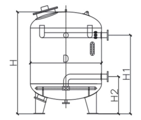
LSXG系列臭氧活性炭吸附罐采用具有高強防晚性能,抗臭氧、氯離子雙重腐蝕的316 L不銹鋼材料制作,設計壓力0.6Mpa.采用縫隙式集水濾棒,使布水面積更大,水流更均勻.活性炭良好的物化指標使得吸附過濾后的水質更穩(wěn)定.頂部設有自動排氣閥,將反應剩余臭氧送至殘余臭氧消除器還原成O后安全排入外界大氣.罐體設有人孔,方便檢修.

